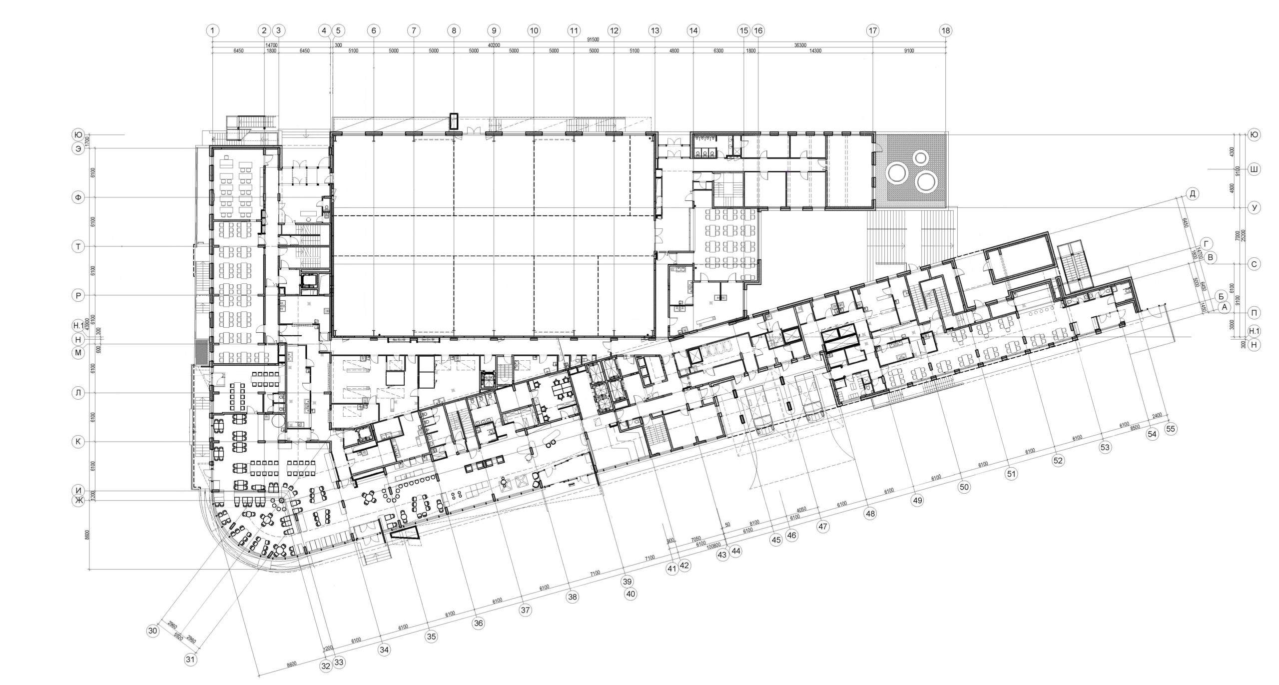
В гостинице имеется 300 номеров, разделённых на категории для воспитанников Академии ФК «Спартак», проживающих во время обучения, спортсменов клуба и посетителей. Инфраструктура кластера разработана с учётом комфорта как спортсменов, так и гостей, не связанных со спортом.
Гостей встречает лобби с яркими красными акцентами. Деревянная отделка и спокойные цвета материалов подчёркивают принадлежность к гостиничной сети CHG.
Спортивная тематика отражена в декоративных элементах с изображениями стилизованных футболистов. Красная лента, проходящая через всё пространство, служит центральным элементом композиции
Ресторан для гостей — это место притяжения всего гостиничного комплекса. Он расположен в полукруглой части здания и предлагает панорамный вид на спортивный стадион «Лукойл Арена» и окрестности района.
Интерьер ресторана выполнен в едином стиле с лобби: нейтральный фон дополнен яркими красными акцентами и криволинейными светильниками, напоминающими ленты, что создаёт гармоничное сочетание с общим дизайном входной группы.
Банкетный зал — многофункциональное пространство. Основная функция помещения это проведение корпоративных и частных мероприятий. Может использоваться для увеличения количества посадочных мест в случае плотной загруженности ресторана для гостей
Данное лобби — территория ФК «Спартак». Зона команды выполнена с использованием стилистических элементов клуба. Декоративные композиции из ромбов являются фоном для презентации достижений: на фронтальной стене на каждом ромбе указана 1 значимая награда и сколько раз она была завоевана.
Стены коридоров декорированы геометрическими узорами в белых, серых и красных оттенках, поддерживающими корпоративную идентичность. На входе в центре стены расположен узнаваемый логотип «Спартака». Перфорированный потолок, геометрические светильники и минималистичные линии подчёркивают современный характер интерьера, добавляя динамики.
Раздевалка футбольного клуба предназначена для подготовки спортсменов к тренировкам и посещениям спортивно-восстановительного комплекса. Она оснащена шкафчиками для переодевания членов команды, экранами для просмотра записей матчей и оборудованием для обсуждения тактики.
Тренажёрный зал для футболистов занимает второе место по важности после футбольного поля. Зал разделён на зоны для разных видов упражнений и групп мышц, включая кардиозону и зону свободных весов. Техническое оснащение и планировка пространства разработаны с учётом опыта ведущих футбольных клубов мира.
В интерьере спортивного зала использованы контрастные черные и светлые оттенки. Большие панорамные окна наполняют пространство естественным светом и создают ощущение открытости. Подсветка на потолке обеспечивает комфортное освещение, а продуманное зонирование – максимальное удобство всех посетителей. Пространство идеально подходит как для интенсивных тренировок, так и для спокойных занятий.
Все санузлы созданы в темно-серых, красных и металлических оттенках, с акцентной подсветкой у зеркала на стене, создающей эффект уюта и футуризма. Перфорированный потолок и встроенное освещение добавляют объема и визуальной легкости.
Ресторан для спортсменов ФК — это зона, где спортсмены и тренерский состав могут отдохнуть, пообщаться и поесть. Обеденный зал рассчитан на 60 посадочных мест, а фишка ресторана — открытая кухня. Интерьер помещения соответствует общему стилю других зон ФК, но с добавлением деревянных элементов.
Зал теории — это кабинет для обсуждения стратегий и анализа игровых моментов матчей. В нём установлены штабелируемые кресла для участников команды и тренерского штаба, а интерьер выполнен в общем стиле административных помещений футбольного клуба.
Функциональное рабочее пространство, оформленное в светлых тонах с контрастными акцентами. Просторный кабинет с большими окнами и горизонтальными жалюзи пропускает много естественного света, что создает комфортные условия для работы. Просторные рабочие столы рассчитаны на командную работу, а вместительные шкафы с папками обеспечивают порядок и удобство хранения документов.
СПА-центр включает бассейн, гидромассажные ванны, массажную комнату, хамам, помещение с криокапсулой и комнату отдыха. Отделочные материалы светлых оттенков в сочетании с текстурой дерева создают спокойную, «чистую» атмосферу.
Интерьер зоны бассейна выполнен в светлой, натуральной цветовой палитре с использованием дерева и стекла. Плавные линии вторят рисункам в других общественных помещениях, и зеркальные вставки на стенах визуально расширяют пространство. Встроенная многоуровневая подсветка на потолке и стенах подчеркивает архитектурные детали и отражается на поверхности воды, создавая атмосферу релакса и спокойствия. В зоне отдыха располагаются гидромассажные ванны, оформленные в едином стиле с бассейном.
Лечебный спортивный массаж имеет большое значение в спорте высокого уровня. Массажная комната предназначена для проведения восстановительных и профилактических процедур. Этот вид массажа помогает спортсменам готовиться, восстанавливаться после травм и предотвращать их появление. Массажная комната рассчитана на восемь посетителей и медицинский персонал.
Академия «Спартак» — это часть спортивного клуба, где обучаются новые таланты. Воспитанники академии — подростки, которые будут жить в гостиничном комплексе в специально оборудованных номерах и тренироваться на футбольных полях.
Дизайн помещения ресторана академии выполнен на контрасте светлого пола и стеновых панелей с ярким потолком в цветах клуба. Необычная фишка помещения — подвесные профильные светильники в форме мотивирующих надписей. Ресторан рассчитан на 76 мест. Для брендинга и отдельно были отрисованы элементы инфографики, которые легли в основу оформления всех зон академии.
В свободное от тренировок время для подростков предусмотрены многофункциональные пространства, где они могут интересно проводить досуг и отдыхать.
В центре помещения размещен мягкий модульный диван с шахматным столиком, подходящий как для деловых бесед, так и для неформального общения. Рядом расположены удобные пуфы, которые легко перемещать по пространству.
Задний план украшен эффектной акцентной стеной с неоновой тематической подсветкой. Здесь размещен современный бильярдный стол — отличное место для отдыха и дружеских матчей.
В левой части помещения находится мини-кухня, оснащённая современной техникой — кофемашиной и раковиной.
Вдоль стен расположены стеллажи с книгами и декором — дополнительное пространство для творчества, чтения и неформальных переговоров.
Просторный коворкинг играет роль пит-стопа на этаже.
Мягкие модульные диваны и пуфы обеспечивают комфорт и свободную трансформацию пространства для различных форматов общения и отдыха. С другой стороны стоят мобильные столы и эргономичные кресла на колесах, удобные для групповых занятий и совместных обсуждений. На стене — большая маркерная доска для презентаций и командной работы. В глубине помещения — кофейная зона с акцентной бордовой нишей, оснащённая открытыми полками, кофемашиной и посудой. Идеальное пространство для встреч, обучения и креативных brainstorm’ов.
В углу расположен столик с шахматной доской, создающий дополнительную точку притяжения для гостей. Акцентные линии на всех этажах на полу и плавные светильники на потолке подчеркивают единый стиль проекта.
Коридоры номеров оформлены в той же цветовой гамме,
что и номера: оттенки серого, бордовый и белый цвета.
Оформление лифтового холла продолжает стиль коридоров.
В интерьере присутствуют динамичные геометрические
композиции, переходящие со стен на пол. Номера этажей
обозначены объёмными цифрами с контражурной подсветкой на
противоположной от лифта стене.
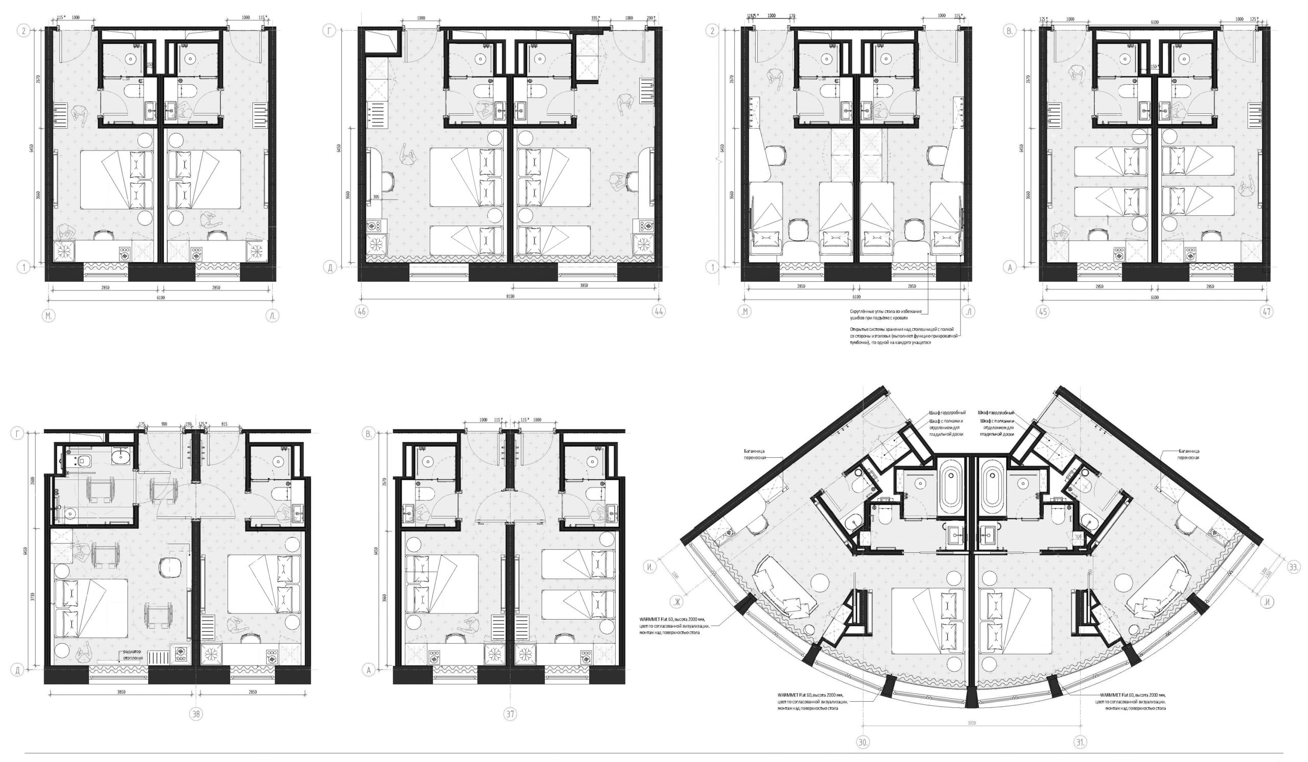
Номерной фонд отеля состоит из семи типов номеров: стандартные, TWIN, семейные FAMILY, совмещённые CONNECT, номера для людей с ограниченными возможностями, пять вариантов номеров STUDIO и люксы. Также предусмотрены отдельные типы номеров для спортсменов ФК и воспитанников академии.
Для спортсменов предусмотрены отдельные номера на основе TWIN. Они выполнены в едином стиле со стандартными номерами, но имеют дополнительные зоны хранения над мини-баром.
The rooms of the academy are intended for students of the Spartak club and are designed for two people. The rooms have single beds with drawers for storing things, desks, and wardrobes.
Номера академии предназначены для воспитанников клуба «Спартак» и рассчитаны на двух человек. В комнатах установлены односпальные кровати с выдвижными ящиками для хранения вещей, письменные столы и гардеробные шкафы.
«Территория Спартак» — это идеальное пространство для тренировок, работы, отдыха и вдохновения, сочетающее уют, функциональность и современные дизайнерские решения. Его оформление вдохновляет на новые победы и подчеркивает уникальность клуба и его характерность в виде брендинг-айдентики и общих ценностей команды.











